Description
Beautiful ground floor flat in idyllic and central area of Cambridge, Newnham.Great for professionals commuting around the city and Camb Uni.This one bed property has just had new coat of oaint throughout and new flooring.Galley kitchen has all appliances provided, generous size living space and adequate double bedroom and shower room.Very spacious property for a one bed in central Cambridge.Viewings highly recomended. Available from 16th April 2026
Viewing
Please contact us on 01223 477990 if you wish to arrange a viewing appointment for this property, or require further information.
Energy Performance Certificate
Click here to view the Energy Efficiency Rating and Environmental Impact Rating for this property.
Disclaimer
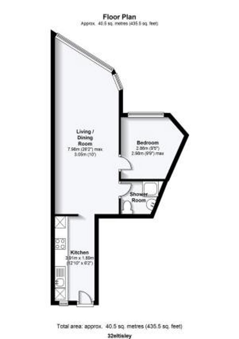
Best Let - CB5 endeavour to maintain accurate depictions of properties in Virtual Tours, Floor Plans and descriptions, however, these are intended only as a guide and purchasers must satisfy themselves by personal inspection.
Beautiful ground floor flat in idyllic and central area of Cambridge, Newnham.Great for professionals commuting around the city and Camb Uni.This one bed property has just had new coat of oaint throughout and new flooring.Galley kitchen has all appliances provided, generous size living space and adequate double bedroom and shower room.Very spacious property for a one bed in central Cambridge.Viewings highly recomended. Available from 16th April 2026
Viewing
Please contact us on 01223 477990 if you wish to arrange a viewing appointment for this property, or require further information.
Energy Performance Certificate
Click here to view the Energy Efficiency Rating and Environmental Impact Rating for this property.
Disclaimer
Best Let - CB5 endeavour to maintain accurate depictions of properties in Virtual Tours, Floor Plans and descriptions, however, these are intended only as a guide and purchasers must satisfy themselves by personal inspection.
Features
- 1 Bedroom
- Flat
- Part Furnished
- Newnham
- Street parking Available
- Council Tax Band B
- 1 Reception
- 1 Bathroom
- Long Term
Share

